<Wohnhäuser Hammerstrasse, Basel, 1978–1981

X

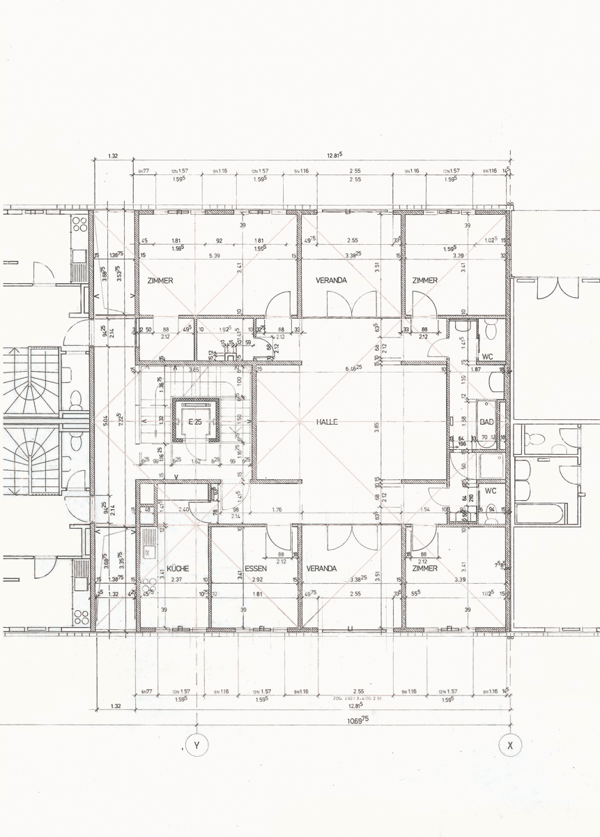
Das frühere Industriegelände, auf dem die Patent-Ochsner-Mülleimer produziert wurden, liegt im dichtbesiedelten Matthäus-Quartier auf der Kleinbasler Seite im Norden der Stadt. Es umfasst gut die Hälfte eines Strassengevierts. In Analogie zur traditionellen Blockrandbebauung des späten 19. Jahrhunderts mit einem Wohnhaus an der Strasse und einem kleineren Gewerbehaus im Hof begrenzt eine Zeile zweigeschossiger Atelierbauten einen Wohnhof, der von einem fünfgeschossigen U-förmigen Häuserblock umgeben ist. Eine Allee führt zwischen den alten Gewerbebauten und den neuen Ateliers mitten durch das Geviert und verknüpft dessen halböffentlichen inneren Raum mit dem Quartier ausserhalb.  An der langen Strassenflucht im Norden ist der Wohnblock mit vielen Fenstern versehen. Nach Süden in den Hof ragen Loggien und verglaste Balkone und der Wohnblock nimmt die Gliederung und Struktur sich aneinanderreihender Stadthäuser auf. Die Wohnungen der beiden kurzen Schenkel sind zur Strasse und zum Hof gleich ausgebildet. Die zur Strasse ausgerichteten Ein- und Dreizimmerwohnungen in den Eckbauten können miteinander verbunden werden. Die mittleren und grossen Wohnungen der übrigen Hauseinheiten sind für Familien und Wohngemeinschaften konzipiert.  Die Räume im Erd- und ersten Obergeschoss sind zu Maisonnettewohnungen mit autonomen Eingängen zusammengefasst. Strassenseitig sind die Fassaden beider Geschosse als Sockelzone mit Rustiko-Betonelementen ausgebildet. Die darüberliegenden Wohnungen werden über ein Treppenhaus erschlossen. Alle Hauseinheiten verfügen über eine gemeinsame Dachterrasse. Die segmentbogenförmige Glasfassade, welche die Nordwestecke akzentuiert, setzt sich aus einzelnen, aussen mit Leisten verstärkten Holzfenstern zusammen.

Die Wohnbebauung Hammerstrasse ist die erste umfangreiche Arbeit des Büros, die sich mit der Typologie von Wohnungen und Zimmern beschäftigt. Grundrissorganisation, Dimensionen und Proportionen von Räumen, Grösse und Art der Fenster sind von einer Ökonomie im Wohnungsbau bestimmt. Wesentliches Gewicht wurde einer übergeordneten Geometrie beigemessen. Wegen seiner Auseinandersetzung im Spannungsfeld zwischen der Stadt des 19. Jahrhunderts und modernem Wohnungsbau sowie wegen der Nachbarschaft von Wohnen und Kleingewerbe als städtebaulicher Form fand das Projekt in den 1980er Jahren einigen Widerhall.

Datum: 1978—1981
Auftraggeber: Basellandschaftliche Beamtenversicherungskasse Liestal
Ort: Hammerstrasse, Bläsiring, Efringerstrasse, Basel, Schweiz
Bruttogeschossfläche (BGF): 15.600 m²
Programm: 88 Wohnungen, 8 Ateliers, Kindergarten, Läden
Bauingenieur: Léon Goldberg

  • Diener 0525-HAM Apartment-Buildings-Hammerstrasse Basel P5919-0014
  • Diener 0525-HAM Apartment-Buildings-Hammerstrasse Basel P5919-0011
  • Diener 0525-HAM Apartment-Buildings-Hammerstrasse Basel P5919-0012
  • Diener 0525-HAM Apartment-Buildings-Hammerstrasse Basel P5919-0010
  • Diener 0525-HAM Apartment-Buildings-Hammerstrasse Basel P5919-0016
  • Diener 0525-HAM Apartment-Buildings-Hammerstrasse Basel P5919-0015
  • Diener 0525-HAM Apartment-Buildings-Hammerstrasse Basel P5919-0006R
  • Diener 0525-HAM Apartment-Buildings-Hammerstrasse Basel P5919-0004
  • Diener 0525-HAM Apartment-Buildings-Hammerstrasse Basel P5919-0005R
  • Diener 0525-HAM Apartment-Buildings-Hammerstrasse Basel P5919-0007
  • Diener 0525-HAM Apartment-Buildings-Hammerstrasse Basel P5919-0008
  • Diener 0525-HAM Apartment-Buildings-Hammerstrasse Basel P5919-0009